Eladó Műhely, Gödöllő

#2517994

Eladó Műhely

799 millió Ft

Gödöllő
Alapterület:
3 883 m2
Szobák száma:
nincs megadva
Állapot:
Építési mód:
Tégla
ÚJ AJÁNLAT

Kérjen személyes bemutatást!
Adja meg adatait, és hogy mikor érne rá!

Az Adatkezelési tájékoztatót elolvastam és elfogadom.

Megfelelő időpontok

Hétköznap délelőtt
Hétköznap délután
Hétköznap este
Hétvégén délelőtt
Hétvégén délután
Hétvégén este
Kérés elküldése
13 175 m2
Cirkó
230 - 400 Volt
Van, saját vízórával
Vezetékes gáz
Közműhálózatba bekötve

Ritka befektetési lehetőség!

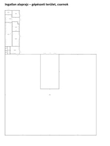
Gödöllő kiváló részén, kamionbehajtással rendelkező, körbejárható egyedi területen, 3883nm-es ipari üzem-csarnok eladó! 

Az ingatlan önálló helyrajzi számon nyilvántartott, 13.175nm-es, ipari kapukkal felszerelt, összközműves telken helyezkedik el. Övezeti besorolása Gip-04., beépíthetősége 40%.

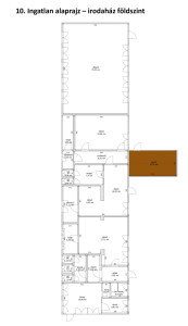
Az irodaház földszintjén öltöző, étkező, szociális helyiségek, raktárak, emeleten irodák - tárgyalók kaptak helyet, konyhával, mosdókkal. 

A gyártócsarnokban két daru üzemel, az emeleti irodákból kiválóan belátható az egész üzem. Kiépített kamerarendszerrel, led világításokkal felszerelt.

Belmagasság az irodaépületnél 2,6m, a csarnok területen 5,8m, a gépészeti épületrész pedig 4,4m.

Csarnokban hőlégbefúvás, az irodában gázcirkó fűtés működik, radiátoros hőleadással.

A zárt udvaron belül több aszfaltozott parkolóhely került kialakításra.

Remek részen, a város határában, az M0, M31 és M3-as autópályáktól 10 percre található!

Irányár: 2.000.000 euró (külföldi cég, nettó ár)

Hivatkozási szám: 2517994.

Megtekinthető telefonos időpont egyeztetés alapján:

Sápi Tamás +36 20 944-7025 sapitamas@godolloi.hu 

GÖDÖLLŐ INGATLANKÖZPONT - www.godolloi.hu: Gödöllő és környéke legnagyobb ingatlan választéka /Gödöllő, Szada, Veresegyház, Kistarcsa, Kerepes, Erdőkertes/ eladó-kiadó családi ház, telek, lakás! Ingatlan építés és felújítás!



Lakástakarék, babaváró hitel és jelzáloghitel közvetítésben együttműködő partnerünk a Hitelnet Kft. A kalkulátor üzemeltetője a hitelnet.hu.

Kérdése van?
Adja meg adatait és felhívjuk!

Az Adatkezelési tájékoztatót elolvastam és elfogadom.
Üzenet küldése